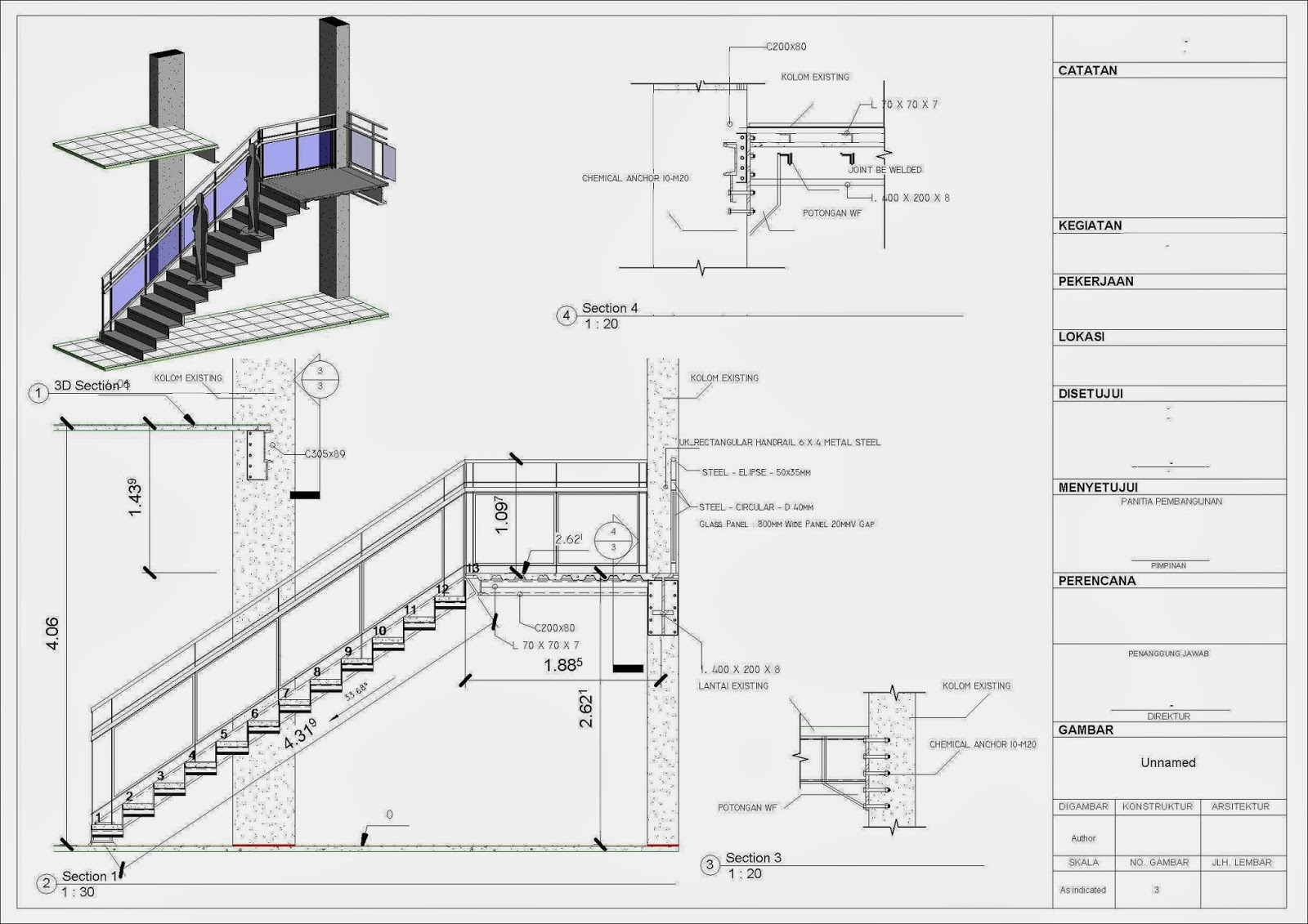
tangga berfungsi
untuk memindahkan seseorang / sesuatu yang dapat digerakkan dan bergerak dari
atas kebawah, atau sebaliknya. kali ini saya akan membagi sedikit penjelasan
tentang bagian -bagian dari struktur tangga.
BAGIAN - BAGIAN DARI STRUKTUR
TANGGA
1. Pondasi tangga
- Sebagai dasar tumpuan (landasan) agar
tangga tidak mengalami penurunan, pergeseran.
-
Pondasi tangga bisa dari pasangan batu kali, beton bertulang atau kombinasi
dari kedua bahan dan pada dibawah pangkal tangga harus diberi balok anak
sebagai pengaku pelat lantai, agar lantai tidak menahan beban terpusat yang
besar.
2. Ibu tangga
-
Merupakan bagian dari tangga sebagai konstruksi pokok yang berfungsi untuk
mendukung anak tangga.
3. Anak tangga
- Anak
tangga berfungsi sebagai bertumpunya telapak kaki, dibuat dengan jarak yang
sama dan selisih tinggi (trap) dibuat, supaya kaki yang melangkah menjadi
nyaman, enak untuk melangkah, bentuk anak tangga dapat divariasikan sesuai
selera pemilik atau arsiteknya.
4. Pagar tangga
-
Pagar tangga atau reilling tangga adalah bagian dari struktur tangga sebagai
pelindung yang diletakkan disamping sisi tangga dan di pasang pada/ diatas ibu
tangga untuk melindungi agar orang tidak terpelosok jatuh.
-
Pagar tangga dapat dibuat dengan macam - macam variasi agar lebih artistik dan
pada lantai tingkat disekitar lubang tangga harus dipasang juga pagar pengaman
agar penghuni tidak terjerumus jatuh.
5. Pegangan tangga
-
Merupakan batang yang di pasang sepanjang anak tangga untuk bertumpunya tangan
agar orang turun naik tangga merasa lebih aman, pegangan tangga bertumpu pada
tiang - tiang tangga yang tertanam kuat pada ibu tangga.
6. Bordes
-
Adalah pelat datar diantara anak - anak tangga sebagai tempat beristirahat
sejenak, bordes di pasang pada bagian sudut tempat peralihan arah tangga yang
berbelok.
-
Untuk rumah tinggal, lebar bordes antara 80 - 100 cm dan untuk bangunan umum,
lebar bordesnya dibuat antara 120 - 200 cm.
-
Dapat dibuat dengan 3 model, yaitu Bordes tangga lurus, bordes tangga L dan
bordes tangga U.
Semoga
bermanfaat
Sign up here with your email



